
Ein Zuhause, das Zukunft hat – schlüsselfertiger Wohntraum in Neukirch
Grundlagen
- Preis pro qm: €4.359
- Kategorie: Einfamilienhaus
- Typ: Haus
- Status: Kauf
- Schlafzimmer: 4
- Badezimmer: 1
- Zimmer insgesamt: 5
- Fläche: 126 m²
- Grundstücksgröße: 335 m²
Objektbeschreibung
-
Beschreibung:
Beschreibung
Ein Traum nimmt Form an – Ihr schlüsselfertiges Zuhause in Neukirch
Manchmal beginnt ein neues Kapitel nicht mit einem Umzug, sondern mit einer Vision. Dieses moderne Neubauprojekt in Neukirch befindet sich aktuell in der Bauplanungsphase – hier liegt Ihre Chance, von Anfang an Teil eines besonderen Zuhauses zu werden.
Geplant als QNG-zertifizierbares Einfamilienhaus mit ca. 126 m² Wohnfläche in nachhaltiger Holzständerbauweise, entsteht auf einem ca. 335 m² großen Grundstück ein Ort, der modernes Design, Energieeffizienz und echte Wohnqualität vereint. Das Haus wird schlüsselfertig errichtet – einziehen, ankommen, wohlfühlen.
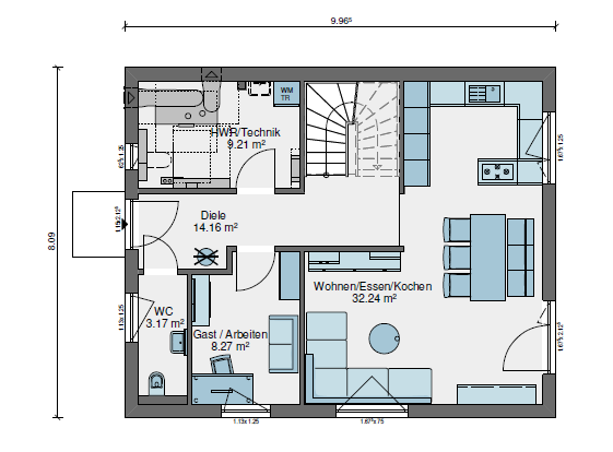
Der offen gestaltete Wohn-, Ess- und Küchenbereich bildet das Herzstück des Hauses: lichtdurchflutet, großzügig und einladend für gemeinsame Mahlzeiten, gesellige Abende und gemütliche Familienmomente. Ergänzt wird das Erdgeschoss durch ein Gäste-WC, ein Gäste-/Arbeitszimmer und einen Hauswirtschaftsraum.
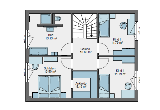
Im Obergeschoss schaffen ein Elternschlafzimmer mit Ankleide, zwei Kinderzimmer und ein großzügiges Familienbad Raum für Rückzug, Alltag und Geborgenheit. Fußbodenheizung und moderne Luft-Wasser-Wärmepumpe sorgen für ein angenehmes, nachhaltiges Raumklima.
Machen Sie den ersten Schritt zu Ihrem Traumhaus – vereinbaren Sie gleich einen Beratungstermin!
Lage
Die Traumvilla entsteht auf einem zurückversetzten Grundstück in einer ruhigen Sackgasse. Hier erwartet Sie naturnahe Idylle, Ruhe und Geborgenheit – ein perfektes Zuhause für Familien, die das Landleben lieben. Umgeben von grünen Wiesen, Wäldern und sanften Hügeln bietet Neukirch (PLZ 88099) die ideale Kombination aus Erholung, Freiraum und Gemeinschaft.
Kindergarten, Grundschule und Einkaufsmöglichkeiten sind bequem erreichbar, während Friedrichshafen, Tettnang und Ravensburg schnelle Anbindungen bieten. Zahlreiche Spazier- und Radwege, die Nähe zum Bodensee und die ländliche Ruhe machen jeden Tag zu einem Erlebnis in der Natur.
Ein Ort, an dem Kinder sicher aufwachsen, Familien gemeinsame Momente genießen und Erwachsene den Alltagsstress hinter sich lassen können – hier wird Wohnen zum Wohlfühlen.
Ausstattung
Highlights des Hauses:
- QNG zertifizierbar
- großzügiger Wohn- und Essbereich
- Gäste-WC und Gäste-/Arbeitszimmer im Erdgeschoss
- 3 Schlafzimmer auf einer Etage im Obergeschoss
- Badezimmer mit Dusche und Badewanne
- Elternschlafzimmer verfügt über eine eigene Ankleide
- effiziente Luft-Wasser-Wärmepumpe
- Fußbodenheizung
- PV-Anlage mit Batteriespeicher
- Dachform Satteldach
- Dachneigung 25°
- Wohnfläche 126,00 m²
- Anzahl Geschosse 2
Sonstiges
Die projektierte Doppelhaushälfte ist QNG zertifizierbar. Somit ist für Sie (Familie mit 1-2 Kinder) die höchste Förderstufe der KfW-Förderung "Wohneigentum für Familien" möglich und Sie profitieren von zinsgünstigen Krediten, die Ihnen die Finanzierung noch einmal zusätzlich erleichtern. Ob für Sie weitere Fördermöglichkeiten in Frage kommen, klären wir gerne in einem persönlichen Beratungsgespräch.
Grundriss
Alle Beschreibung anzeigen