
Familienglück am Bodensee – in Planung, Neubau-Einfamilienhaus mit Seesicht
Grundlagen
- Preis pro qm: €6.298
- Kategorie: Einfamilienhaus
- Typ: Haus
- Status: Kauf
- Schlafzimmer: 5
- Badezimmer: 2
- Zimmer insgesamt: 6
- Fläche: 169 m²
- Grundstücksgröße: 331 m²
Objektbeschreibung
-
Beschreibung:
Beschreibung
Hier entsteht ein Zuhause, in dem Familienleben wachsen darf.
Im beliebten Baugebiet Weingarten in Gaienhofen, nur wenige Gehminuten vom Bodensee entfernt, entsteht auf einem ca. 331 m² großen Grundstück mit Seesicht ein Ort voller Geborgenheit, Lebensfreude und Gemeinschaft.
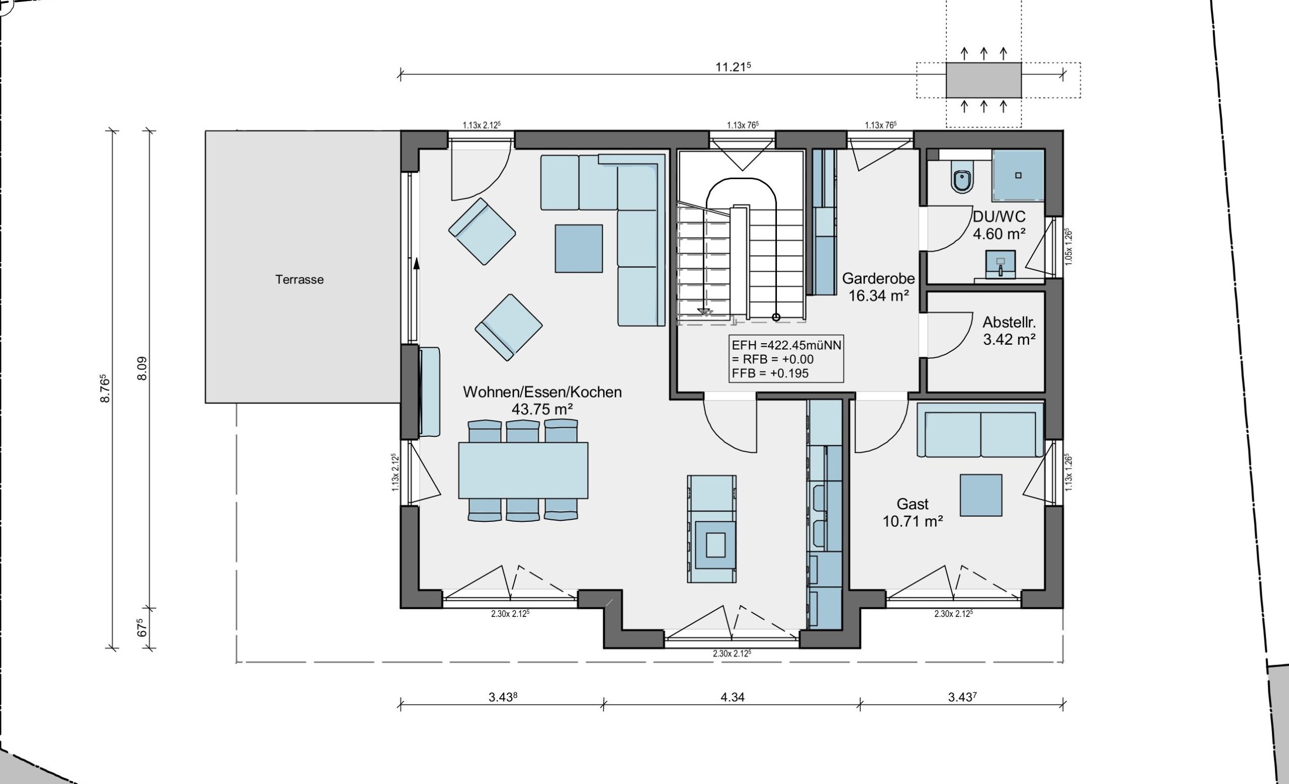
Das moderne, lichtdurchflutete Einfamilienhaus mit rund 169 m² Wohnfläche verbindet zeitlose Architektur mit einem durchdachten, familienfreundlichen Wohnkonzept. Herzstück des Hauses ist der großzügige offene Wohn-, Ess- und Kochbereich im Erdgeschoss – ideal für gemeinsame Zeit mit Familie und Freunden.
Ein Gästezimmer, ein Gäste-Bad mit Dusche sowie ein separater Abstellraum sorgen für zusätzlichen Komfort und flexible Nutzungsmöglichkeiten.
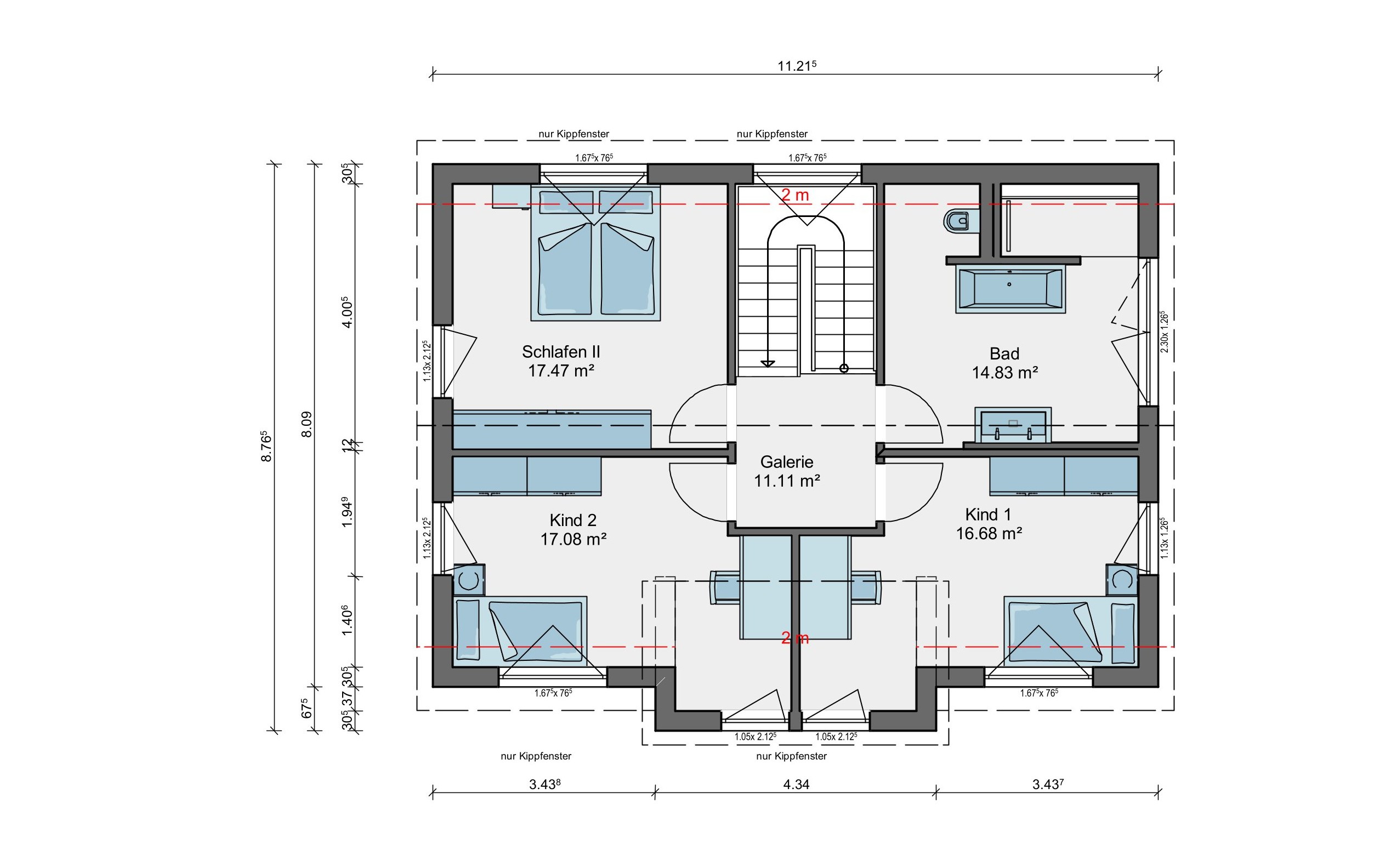
Im Obergeschoss befinden sich die privaten Rückzugsorte der Familie: ein großzügiges Elternschlafzimmer, zwei große Kinderzimmer sowie ein stilvolles Familienbad mit Badewanne und begehbarer Dusche.
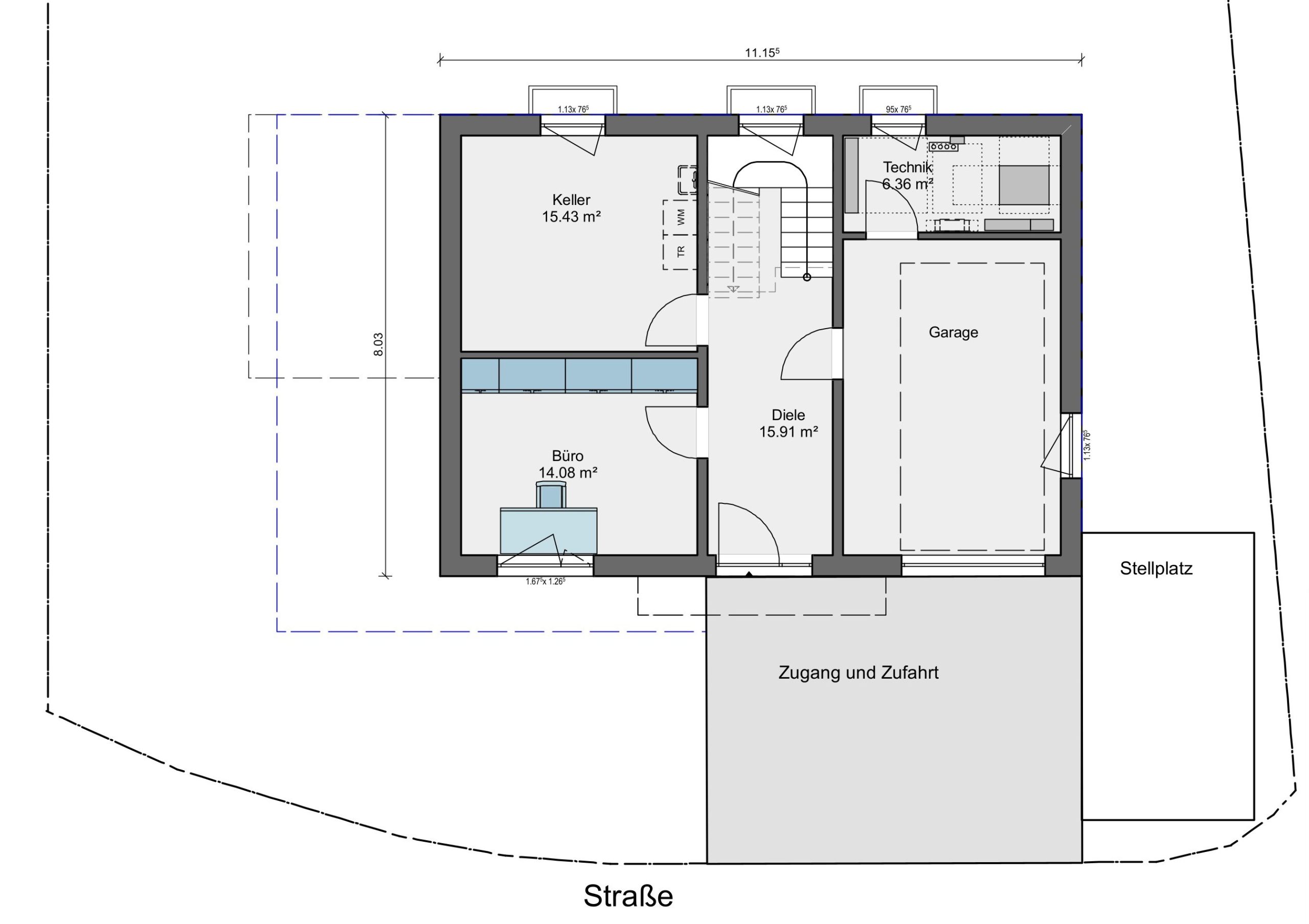
Das Untergeschoss bietet mit Hauswirtschafts- und Technikraum, Büro, Kellerraum sowie der Garage mit direktem Zugang ins Haus viel Platz für Alltag, Hobbys und Organisation.
Photovoltaik mit Batteriespeicher, Fußbodenheizung und helle Räume sorgen für zukunftssicheren Wohnkomfort. Die Nähe zum Bodensee verleiht diesem Zuhause eine besondere Leichtigkeit.
👉 Lassen Sie Ihren Wohntraum wahr werden und vereinbaren Sie Ihren persönlichen Beratungstermin.
Lage
Gaienhofen ist ein idyllischer Ort, der Ruhe und Komfort in idealer Weise vereint. Diese Immobilie befindet sich in einer hervorragenden Lage. Der Bodensee ist nur wenige Minuten entfernt und bietet sommerliche Erholung, Wassersport und Freizeitmöglichkeiten für die ganze Familie.
Trotz der naturnahen Lage ist alles, was Sie für den Alltag brauchen, schnell erreichbar: Schulen, Kindergärten, Einkaufsmöglichkeiten und medizinische Versorgung befinden sich in der Nähe, während Städte wie Singen, Schaffhausen oder Konstanz bequem erreichbar sind. Das historische Ortsbild mit seinen charmanten Fachwerkhäusern, die lebendige Gemeinschaft und kulturelle Angebote machen Gailingen zu einem Ort, an dem Familien nicht nur wohnen, sondern sich rundum wohlfühlen.
Hier verbinden Sie Lebensqualität, Natur und Urlaubsflair in einem Zuhause, das mehr ist als nur ein Wohnort – es ist ein Ort, an dem Familie und Alltag leicht und unbeschwert zusammenfinden.
Ausstattung
Highlights des Hauses:
- großzügiger Wohn- und Essbereich mit offener Küche
- Gäste-WC mit Dusche und Gästezimmer im Erdgeschoss
- 3 Schlafzimmer auf einer Etage im Obergeschoss
- Badezimmer mit Dusche und Badewanne
- Keller mit Garage und Arbeitszimmer
- Technikraum im Keller
- effiziente Luft-Wasser-Wärmepumpe
- Fußbodenheizung
- PV-Anlage mit Batteriespeicher
Grundriss
Alle Beschreibung anzeigen