
Gaienhofen-Horn: Traumhaus in Top Lage – nur wenige Schritte zum Bodensee
Grundlagen
- Preis pro qm: €7.666
- Kategorie: Einfamilienhaus
- Typ: Haus
- Status: Kauf
- Schlafzimmer: 5
- Badezimmer: 2
- Zimmer insgesamt: 6
- Fläche: 156 m²
- Grundstücksgröße: 634 m²
Objektbeschreibung
-
Beschreibung:
Beschreibung
Traumhaus mit viel Platz für Ihre Familie!
In begehrter Lage von Gaienhofen-Horn, nur etwa 700 Meter vom Seeufer entfernt, planen wir auf einem 634 m² großen Grundstück den Bau dieses hochwertigen Einfamilienhauses mit rund 156 m² Wohnfläche. Das Haus mit Zwerchgiebel und klassischem Satteldach wird von Hanse Haus in bewährter Qualität errichtet und verbindet zeitlose Architektur mit moderner, energieeffizienter Technik.
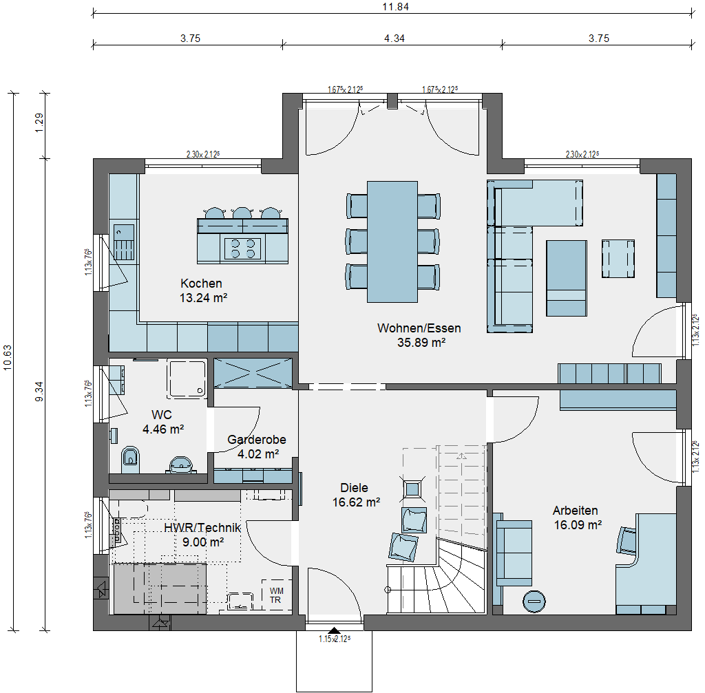
Herzstück des Erdgeschosses ist der großzügige Wohn-, Ess- und Küchenbereich. Große, bodentiefe Fenster öffnen den Raum zum Garten und schaffen eine helle, einladende Atmosphäre – perfekt für gemeinsame Momente mit Familie und Freunden. Ein flexibel nutzbares Gäste- oder Arbeitszimmer, ein Gäste-Bad mit Dusche sowie ein praktischer Hauswirtschafts- und Technikraum ergänzen diese Ebene.
Im Obergeschoss befindet sich der private Rückzugsbereich der Familie. Das Elternschlafzimmer mit Ankleide bietet angenehmen Komfort, während drei gut geschnittene Kinderzimmer Raum für individuelle Rückzugsorte schaffen. Ein stilvolles Familienbad mit Dusche, Badewanne und Fenster rundet das Raumangebot ab.
Moderne Haustechnik mit Luft-Wasser-Wärmepumpe, Fußbodenheizung sowie eine Photovoltaikanlage mit Batteriespeicher sorgen für nachhaltiges und zukunftssicheres Wohnen. Eine QNG-Zertifizierung ist möglich.
Besonders attraktiv: Ihr neues Zuhause lässt sich in vielen Bereichen individuell an Ihre Wünsche anpassen.
👉 Lassen Sie Ihren Wohntraum wahr werden und vereinbaren Sie Ihren persönlichen Beratungstermin.
Lage
Gaienhofen-Horn liegt idyllisch auf der Halbinsel Höri am westlichen Bodensee und zählt zu den besonders beliebten Wohnlagen der Region. Der Ort verbindet naturnahes Wohnen mit hoher Lebensqualität und ist ideal für Familien, die Ruhe, Natur und die Nähe zum Wasser schätzen.
Das Grundstück befindet sich in attraktiver Wohnlage, nur wenige Minuten vom Bodenseeufer entfernt. Die Umgebung ist geprägt von gepflegten Einfamilienhäusern, viel Grün und einer ruhigen, familienfreundlichen Nachbarschaft. Spazier- und Radwege, Badeplätze sowie der Hafen sind schnell erreichbar und bieten zahlreiche Freizeitmöglichkeiten direkt vor der Haustür.
Im nahegelegenen Gaienhofen befinden sich Kindergarten, Grundschule und eine Gemeinschaftsschule. Einkaufsmöglichkeiten für den täglichen Bedarf, Bäckereien, Ärzte und Gastronomie sind ebenfalls gut erreichbar.
Die Stadt Radolfzell am Bodensee liegt nur etwa 15 Minuten entfernt und bietet eine umfangreiche Infrastruktur mit weiteren Einkaufsmöglichkeiten, Schulen, medizinischer Versorgung sowie einem Bahnhof mit guten Bahnverbindungen Richtung Konstanz, Singen und Zürich.
Die reizvolle Lage am Bodensee, das milde Klima und die Nähe zur Schweiz machen Gaienhofen-Horn zu einem besonders attraktiven Wohnort für Familien.
Ausstattung
Highlights auf einen Blick:
- QNG zertifizierbar
- großzügiger Wohn- und Essbereich
- Gäste-WC und Gäste-/Arbeitszimmer im
Erdgeschoss
- 4 Schlafzimmer auf einer Etage im Obergeschoss
- Badezimmer mit Dusche und Badewanne
- Elternschlafzimmer verfügt über eine eigene
Ankleide
- effiziente Luft-Wasser-Wärmepumpe
- Fußbodenheizung im gesamten Haus
- PV-Anlage mit Batteriespeicher für effiziente
Energieversorgung
Sonstiges
Das projektierte Einfamilienhaus ist QNG zertifizierbar. Somit ist für Sie (Familie mit 1-2 Kinder) die höchste Förderstufe der KfW-Förderung "Wohneigentum für Familien" möglich und Sie profitieren von zinsgünstigen Krediten, die Ihnen die Finanzierung noch einmal zusätzlich erleichtern. Ob für Sie weitere Fördermöglichkeiten in Frage kommen, klären wir gerne in einem persönlichen Beratungsgespräch.
Alle Beschreibung anzeigen