
Neubauprojekt – Moderne Doppelhaushälfte (Haus B) in Projektierung – Singen Nordstadt
Grundlagen
- Preis pro qm: €5.000
- Kategorie: Doppelhaushälfte
- Typ: Haus
- Status: Kauf
- Schlafzimmer: 3
- Badezimmer: 1
- Zimmer insgesamt: 4
- Fläche: 125 m²
- Grundstücksgröße: 253 m²
Objektbeschreibung
-
Beschreibung:
Beschreibung
Haus B – Moderne Doppelhaushälfte; unser Neubauprojekt in Singen (Nordstadt)
In Singen in der beliebten Nordstadt planen wir ein Neubauprojekt von vier Doppelhaushälften in hochwertiger Holzständerbauweise. Die hier angebotene, moderne Doppelhaushälfte - Haus B, überzeugt mit ihren ca. 125 m² Wohnfläche und bietet den idealen Raum für Familien mit bis zu zwei Kindern.
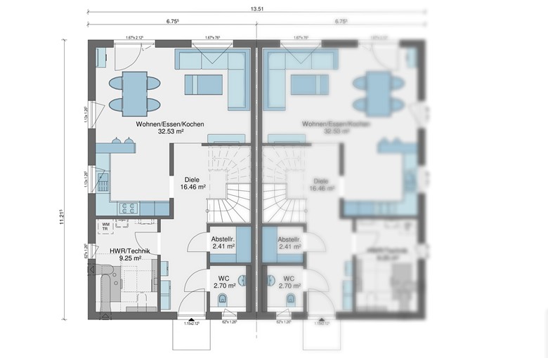
Das Erdgeschoss bietet mit seinem offenen Wohn- und Essbereich Platz für Ihre Familie und Gäste. Zaubern Sie Ihrem Schatz das Valentins-Menü in der hellen, offenen Küche, während der Duft durch den Wohnbereich zieht und die großen Fenster den Blick in den Garten freigeben. Ein Gäste-WC sowie ein praktischer Abstell- und Hauswirtschafts-/Technikraum sorgen für zusätzlichen Komfort im Alltag.
Im Obergeschoss erwarten Sie drei großzügige Schlafzimmer und ein modernes Badezimmer. Dank der durchdachten Grundrisse ohne Dachschrägen entstehen Räume, die sich flexibel gestalten lassen – ob Kinderzimmer, Homeoffice oder Rückzugsort zum Entspannen.
Für nachhaltiges und zukunftssicheres Wohnen sorgen Fußbodenheizung, eine energieeffiziente Luftwärmepumpe sowie die QNG-Zertifizierung mit entsprechend niedrigen Energiekosten.
Das 253 m² große Grundstück bietet einen pflegeleichten Gartenbereich. Hier genießen Sie gemütliche Sommerabende, spielende Kinder und entspannte Stunden im Grünen.
Lassen Sie sich von diesem besonderen Neubauprojekt begeistern – wir freuen uns auf Ihre Anfrage und ein persönliches Gespräch.
Lage
Die hier angebotene Doppelhaushälfte entsteht in der familienfreundliche Nordstadt von Singen und punktet mit kurzen Wegen zu Schulen, Kindergärten und Einkaufsmöglichkeiten. Die Umgebung eignet sich ideal für Familien, Paare und Berufstätige, die eine ruhige Wohnatmosphäre mit guter Erreichbarkeit schätzen.
Einkaufsmöglichkeiten des täglichen Bedarfs, Kindergärten, Schulen sowie ärztliche Versorgung befinden sich in unmittelbarer Nähe. Auch Freizeit- und Erholungsangebote sind vielfältig vorhanden: Spazier- und Radwege, Sportanlagen sowie die nahegelegene Hegau-Landschaft laden zu Aktivitäten im Freien ein.
Die Singener Innenstadt sowie der Bahnhof mit Anschluss an den Regional- und Fernverkehr erreichen Sie in wenigen Minuten. Die Autobahn A81 bietet eine schnelle Verbindung in Richtung Stuttgart und Bodensee, während die Nähe zur Schweiz den Standort auch für Grenzpendler besonders attraktiv macht.
Ausstattung
Highlights auf einen Blick:
- QNG zertifizierbar
- großzügiger Wohn- und Essbereich
- Gäste-WC und Technikraum im Erdgeschoss
- 3 Schlafzimmer auf einer Etage im Obergeschoss
- Badezimmer mit Dusche und Badewanne
- effiziente Luft-Wasser-Wärmepumpe
- Fußbodenheizung im gesamten Haus
- PV-Anlage mit Batteriespeicher für effiziente
Energieversorgung
Sonstiges
Die projektierte Doppelhaushälfte ist QNG zertifizierbar. Somit ist für Sie (Familie mit 1-2 Kinder) die höchste Förderstufe der KfW-Förderung "Wohneigentum für Familien" möglich und Sie profitieren von zinsgünstigen Krediten, die Ihnen die Finanzierung noch einmal zusätzlich erleichtern. Ob für Sie weitere Fördermöglichkeiten in Frage kommen, klären wir gerne in einem persönlichen Beratungsgespräch.
Grundriss
Alle Beschreibung anzeigen