
Traumhaus mit Seesicht in Gaienhofen, inkl.Grundstück – in Projektierung
Grundlagen
- Preis pro qm: €7.094
- Kategorie: Einfamilienhaus
- Typ: Haus
- Status: Kauf
- Schlafzimmer: 5
- Badezimmer: 2
- Zimmer insgesamt: 6
- Fläche: 169 m²
- Grundstücksgröße: 801 m²
Objektbeschreibung
-
Beschreibung:
Beschreibung
Im begehrten Baugebiet Weingarten in Gaienhofen, nur wenige Gehminuten vom Bodensee entfernt, entsteht auf einem ca. 801 m² großen Grundstück mit Seeblick ein modernes Einfamilienhaus – eine seltene Gelegenheit in dieser gefragten Lage.
Das Haus bietet rund 169 m² Wohnfläche und überzeugt durch eine helle, offene Architektur sowie ein familienfreundliches Raumkonzept. Herzstück ist der großzügige Wohn-, Ess- und Kochbereich im Erdgeschoss. Ergänzt wird diese Ebene durch ein Gästezimmer, ein Duschbad und einen Abstellraum.
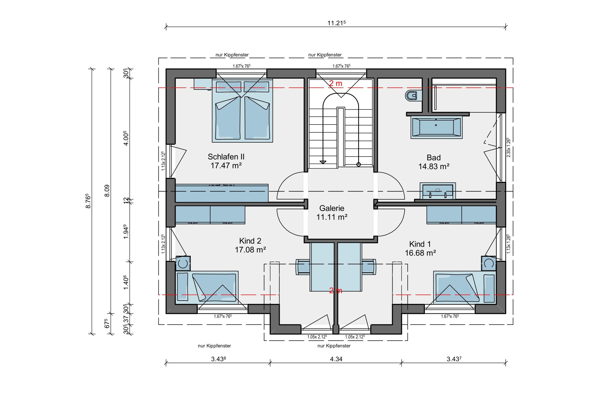
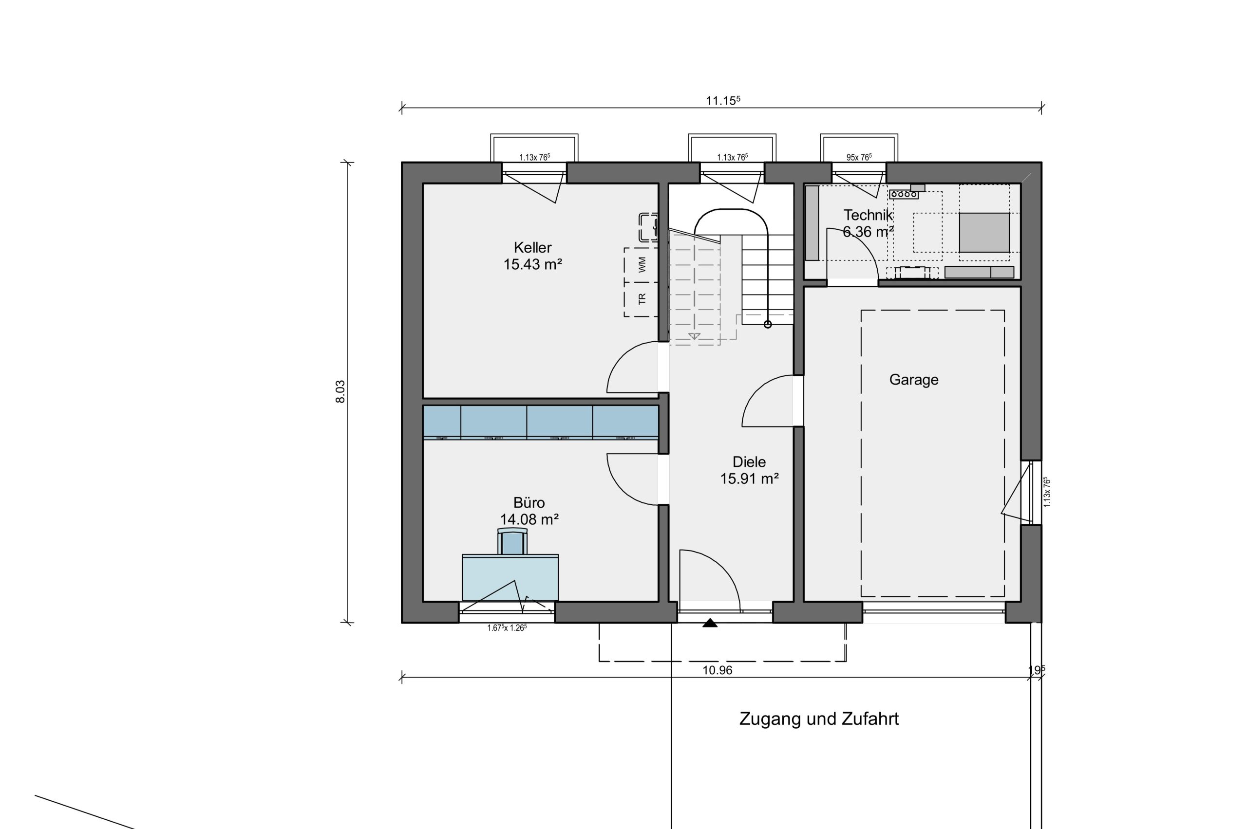
Im Obergeschoss befinden sich ein Elternschlafzimmer, zwei Kinderzimmer und ein hochwertiges Familienbad mit Badewanne und Dusche. Das Untergeschoss bietet zusätzliche Nutzfläche mit Hauswirtschafts- und Technikraum, Büro, Keller sowie einer Garage mit direktem Zugang.
Eine moderne, nachhaltige Ausstattung mit Photovoltaik, Batteriespeicher, Luft-Wasser-Wärmepumpe und Fußbodenheizung sorgt für zeitgemäßen Wohnkomfort.
Ein Zuhause in attraktiver Lage am Bodensee – ideal für alle, die Lebensqualität und Erholung miteinander verbinden möchten.
Lage
Gaienhofen ist ein idyllischer Ort, der Ruhe und Komfort in idealer Weise vereint. Diese Immobilie befindet sich in einer hervorragenden Lage. Der Bodensee ist nur wenige Minuten entfernt und bietet sommerliche Erholung, Wassersport und Freizeitmöglichkeiten für die ganze Familie.
Trotz der naturnahen Lage ist alles, was Sie für den Alltag brauchen, schnell erreichbar: Schulen, Kindergärten, Einkaufsmöglichkeiten und medizinische Versorgung befinden sich in der Nähe, während Städte wie Singen, Schaffhausen oder Konstanz bequem erreichbar sind. Das historische Ortsbild mit seinen charmanten Fachwerkhäusern, die lebendige Gemeinschaft und kulturelle Angebote machen Gaienhofen zu einem Ort, an dem Familien nicht nur wohnen, sondern sich rundum wohlfühlen.
Hier verbinden Sie Lebensqualität, Natur und Urlaubsflair in einem Zuhause, das mehr ist als nur ein Wohnort – es ist ein Ort, an dem Familie und Alltag leicht und unbeschwert zusammenfinden.
Ausstattung
Highlights des Hauses:
- großzügiger Wohn- und Essbereich mit offener Küche
- Gäste-Bad und Gästezimmer im Erdgeschoss
- 3 Schlafzimmer auf einer Etage im Obergeschoss
- Badezimmer mit Dusche und Badewanne
- 2 weitere Schlafzimmer, die alternativ als Gästezimmer oder Büro genutzt werden können
- Keller mit Garage und Arbeitszimmer
- Technikraum im Keller
- effiziente Luft-Wasser-Wärmepumpe
- Fußbodenheizung
- PV-Anlage mit Batteriespeicher
Sonstiges
Selbstverständlich stehen wir Ihnen auch bei allen Fragen rund um Fördermöglichkeiten für Ihr energieeffizientes und nachhaltiges Hanse Haus zur Seite. Mit fundierter Expertise beraten wir Sie individuell zu geeigneten Programmen und zeigen Ihnen, wie Sie vorhandene Förderpotenziale bestmöglich ausschöpfen können.
Grundriss
Alle Beschreibung anzeigen