
Wohnkomfort neu gedacht: Modernes Doppelhaus zum Verlieben – in Projektierung
Grundlagen
- Preis pro qm: €4.575
- Kategorie: Doppelhaushälfte
- Typ: Haus
- Status: Kauf
- Schlafzimmer: 3
- Badezimmer: 2
- Zimmer insgesamt: 5
- Fläche: 120 m²
- Grundstücksgröße: 262 m²
Objektbeschreibung
-
Beschreibung:
Beschreibung
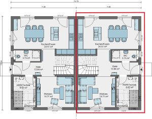
Dieses projektierte Doppelhaus vereint moderne Architektur, durchdachte Grundrissgestaltung und zukunftsweisende Technik zu einem attraktiven Zuhause mit hoher Lebensqualität. In schlüsselfertiger Ausbaustufe realisiert, bietet die Doppelhaushälfte rund 120 m² Wohnfläche und überzeugt mit einem klar strukturierten Raumkonzept.
Das Erdgeschoss empfängt Sie mit einer einladenden Diele, von der aus sich die Wohnbereiche erschließen. Zum Garten hin öffnet sich eine helle Wohnküche mit direktem Zugang zur Terrasse – ideal für gesellige Stunden. Das Wohnzimmer ist bewusst separat angeordnet und schafft einen angenehmen Rückzugsort, während dennoch eine harmonische Verbindung zwischen den Bereichen bestehen bleibt. Ergänzt wird diese Ebene durch ein Duschbad sowie einen praktischen Hauswirtschafts- und Technikraum.
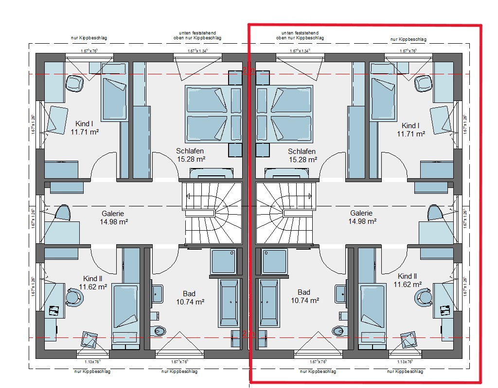
Im Obergeschoss stehen drei gut geschnittene Schlafzimmer sowie ein großzügiges Familienbad mit Dusche und Wanne zur Verfügung. Eine offene Galerie bietet Platz für ein Homeoffice oder eine gemütliche Leseecke.
Die hochwertige Holzständerbauweise sorgt für ein angenehmes Raumklima und hohe Energieeffizienz. Eine Fußbodenheizung in Kombination mit einer Luft-Wasser-Wärmepumpe sowie eine Photovoltaikanlage mit Batteriespeicher unterstreichen den nachhaltigen und zukunftssicheren Charakter dieses Hauses.
👉 Gerne stellen wir Ihnen weitere Informationen zur Verfügung und beraten Sie persönlich. Wir freuen uns über Ihre Kontaktaufnahme.
Lage
Willkommen in einer der charmantesten Städte des Münsterlandes! Dülmen verbindet das pulsierende Leben einer lebendigen Mittelstadt mit der unvergleichlichen Ruhe und Weite der westfälischen Natur – und genau hier, in der Rekener Straße, erwartet Sie Ihr neues Zuhause.
Die ruhige, nach hinten versetzte Lage des Grundstücks schenkt Ihnen eine wohltuende Stille, die man in dieser Nähe zur Stadt kaum erwartet. Kein Durchgangsverkehr, kein Trubel – stattdessen ein geschütztes Fleckchen, das vom ersten Moment an das Gefühl von Ankommen vermittelt.
Für den täglichen Bedarf sind Sie bestens aufgestellt: Supermärkte, Discounter und der lebhafte Einzelhandel der Dülmener Innenstadt sind in wenigen Minuten bequem erreichbar. Ob schneller Einkauf nach der Arbeit oder gemütlicher Stadtbummel am Wochenende – hier ist beides möglich.
Familien werden sich hier sofort wohlfühlen. Kindergärten und weiterführende Schulen befinden sich in unmittelbarer Nähe, sodass die täglichen Wege für Ihre Kinder kurz und sicher sind. Kurze Wege bedeuten mehr Zeit – für das, was wirklich zählt.
Auch die ärztliche Versorgung lässt keine Wünsche offen. Hausärzte, Fachärzte sowie das Krankenhaus Dülmen sind gut erreichbar und sorgen dafür, dass Sie und Ihre Familie jederzeit bestens versorgt sind.
Wer auf das Auto verzichten möchte, findet in der Anbindung an den öffentlichen Nahverkehr eine echte Alternative. Buslinien verbinden Sie zuverlässig mit der Innenstadt und dem Bahnhof Dülmen, von dem aus Sie schnell und bequem in die umliegenden Städte wie Münster oder Recklinghausen gelangen.
Hier lebt es sich einfach gut.
Ausstattung
Highlights des Hauses:
- offene Küche mit großzügigem Essbereich
- separates Wohnzimmer
- Gäste-WC mit Dusche im Erdgeschoss
- 3 Schlafzimmer auf einer Etage im OG
- Familien-Badezimmer mit Dusche und Badewanne
- effiziente Luft-Wasser-Wärmepumpe
- Fußbodenheizung im gesamten Haus
- PV-Anlage mit Batteriespeicher für effiziente
Energieversorgung
Ausbaustufe schlüsselfertig (inkl. Bodenbeläge, Spachtel- und Malerarbeiten und Innentüren)
Sonstiges
Für weitere Informationen, eine persönliche Beratung sowie zur Vereinbarung eines Besichtigungstermins stehen wir Ihnen gerne zur Verfügung.
Ihr Ansprechpartner für dieses Bauvorhaben ist:
Marius Mayer
Mobil: 0162 9816377
E-Mail: marius.mayer@hanse-haus.deWir freuen uns auf Ihre Anfrage und darauf, Sie auf dem Weg in Ihr neues Zuhause begleiten zu dürfen.
Grundriss
Alle Beschreibung anzeigen